全国服务热线:400-651-5676

北京总部热线:010-69739621

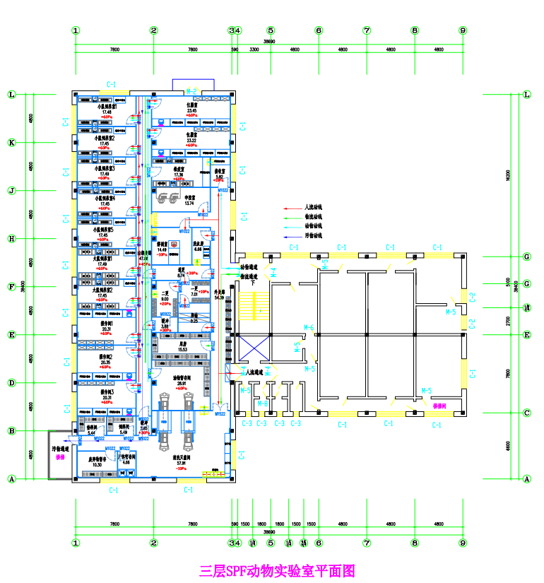
当前位置:首页  / 实验医疗研产工程设计 /  建筑设计
2025-12-04 16:38:23

建筑设计

设计以“安全第一 、环境舒适、美观实用、节能规范”为设计原则,引入先进 的医疗研产系统管理理念,为医疗研产人员提供一流的工作场所。各项目流程清晰, 布局合理,操作顺畅。综合考虑各项因素,充分满足现有需求,并预留发展空间。




Copyright © 2019 slplab.com, All rights reserved. 京ICP备11026370号-1