全国服务热线:400-651-5676
北京总部热线:010-69739621
首页
关于我们
公司简介
资质证书
联系我们
业务服务
专业咨询
规划设计
工程建设
专用设备
认证服务
运维服务
产业领域
科研教育
医疗卫生
电子科工
生物安全
检验检疫
司法文保
石油化工
食品日化
客户案例
新闻动态
当前位置:
首页 /
实验医疗研产工程设计
/ 系统工程设计
2019-09-23 16:16:02
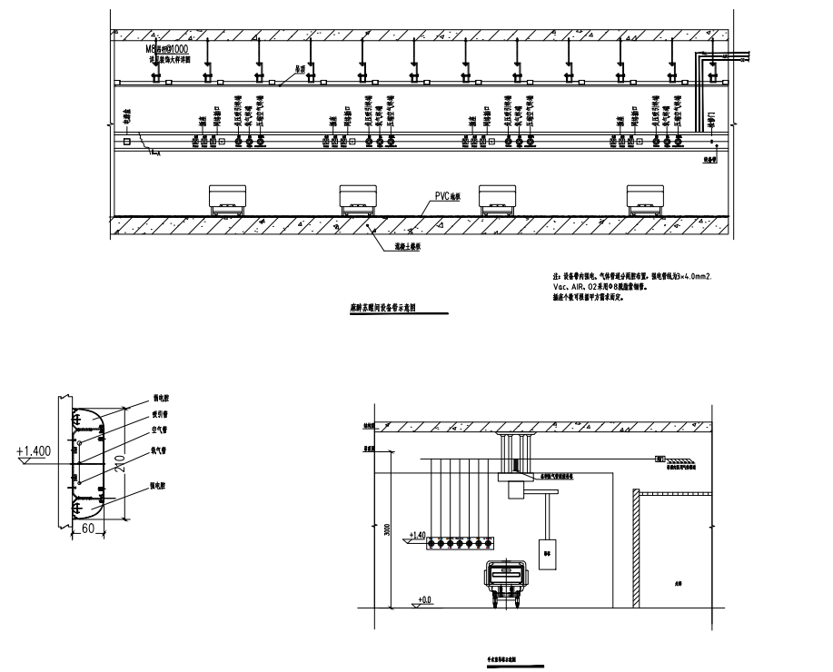
系统工程设计
系统工程设计以“规划合理 、科学规范、 美观实用、节能环保”为设计原则,引入先进的医疗研产系统工程理念,为医疗研产人员提供一流的工作场所。各项目流程清晰,布局合理。综合考虑各项因素, 充分满足现有需求,并预留未来发展空间。
首页
实验医疗设计咨询
实验医疗系统工程(EPC)
实验医疗家具与设备
工程案例
关于我们
新闻动态
Copyright © 2019 slplab.com, All rights reserved.
京ICP备11026370号-1